Property Type
Property Name
Square Footage: -
arrow_backward
Rent Sole Agency | Office

La Plaiderie Chambers Centrally Located Office

La Plaiderie, St Peter Port, Guernsey
£49,167 per annum
  • Total Space
    1,821 SQ FT
  • Office
    Fully Furnished
  • Location
    Central
  • Turn-key
    Opportunity
  • Excellent
    Natural Light
  • Available
    Immediately
Location

La Plaiderie Chambers occupies a prominent position in the heart of St Peter Port’s financial district and the main retail area. It is also conveniently located near the public car parks, including North Beach. 

Other occupiers in the vicinity include Barclay’s Wealth, Zedra, FNB, Rothschild, Lloyds and Praxis as well as other national and local occupiers and many restaurants including Christies and JB Parkers to name a few. 

Description

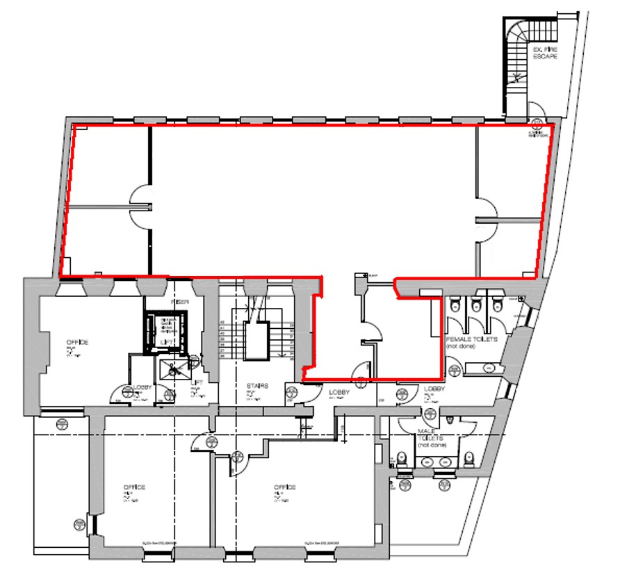
The available premises is situated on part of the second floor of La Plaiderie Chambers, a multi-tenanted office building which has an impressive two storey atrium style entrance with stairwell and a passenger lift serving all floors.

The premises is predominantly offered in an open plan layout and benefits from an eight person board room and a six person meeting room. The space also comprises a sound proof room for private calls and a large kitchenette/ breakout space.

The office has been recently upgraded and has been finished to a very high standard. The space benefits from suspended ceilings with LED light panelling, raised access flooring and air conditioning throughout.

The office can come fully furnished at an extra cost, therefore offering a turn key solution. 

It has shared use of the communal toilet facilities.

Accommodation

The available premises provides approximately 1,812 sq ft of office accommodation. This comprises a mixture of open plan office accommodation and meeting rooms.

Tenure

The premises is available to rent by way of a sublease or assignment from the existing tenant for a term expiring on 22nd June 2029. Alternatively, the landlord may consider a surrender if a longer lease is desired.

There is a GRPI rent review due on 22nd June 2026.

Rent

The rent for the Premises is £49,167 but is subject to a GRPI rent review on 22 June 2026.

In addition to the rent, the tenant is also responsible for the Tax on Real Property, parish rates, building insurance and electricity.

Availability

The premises is available to rent immediately.

Legal Costs

All terms are subject to contract.
Each party is to bear their own legal costs in connection with this transaction.

  • Building Consultancy

    Our Building Consultancy Team offers a broad range of building surveying services, including project management, defect analysis, dilapidations and interior fit outs on all property types.

  • Lease Consultancy

    Our Lease Consultancy Department includes an expert team to deal with all manner of landlord and tenant matters.

Rent Sole Agency

La Plaiderie Chambers Centrally Located Office

 
Book Viewing
Complete your details below and we will contact you:

Something went wrong, please try again.

Your request was submitted, we'll be in touch!