Property Type
Property Name
Square Footage: -
arrow_backward
Rent Multi-Agency | Office

Old Bank Chambers Self-contained Offices

La Grande Rue, St Martin, Guernsey
  • Total Space
    1,630 SQ FT
  • Specification
    Fully fitted
  • Location
    Prominent
  • Parking
    2 Onsite
  • Available
    Immediately
  • Rent
    Upon Application
Location

The property is prominently positioned on La Grande Rue in St Martin’s, on the intersection of La Grande Rue and Rue Maze in the heart of St Martin’s Village. As such it lies directly opposite the Community Centre and several businesses including office buildings, estate agents, retail units, supermarkets and petrol stations.


Other occupiers in the vicinity include Marks & Spencer’s, Vets4Pets, Cooper Brouard, Ogier’s and the Co-op Grande Marche.

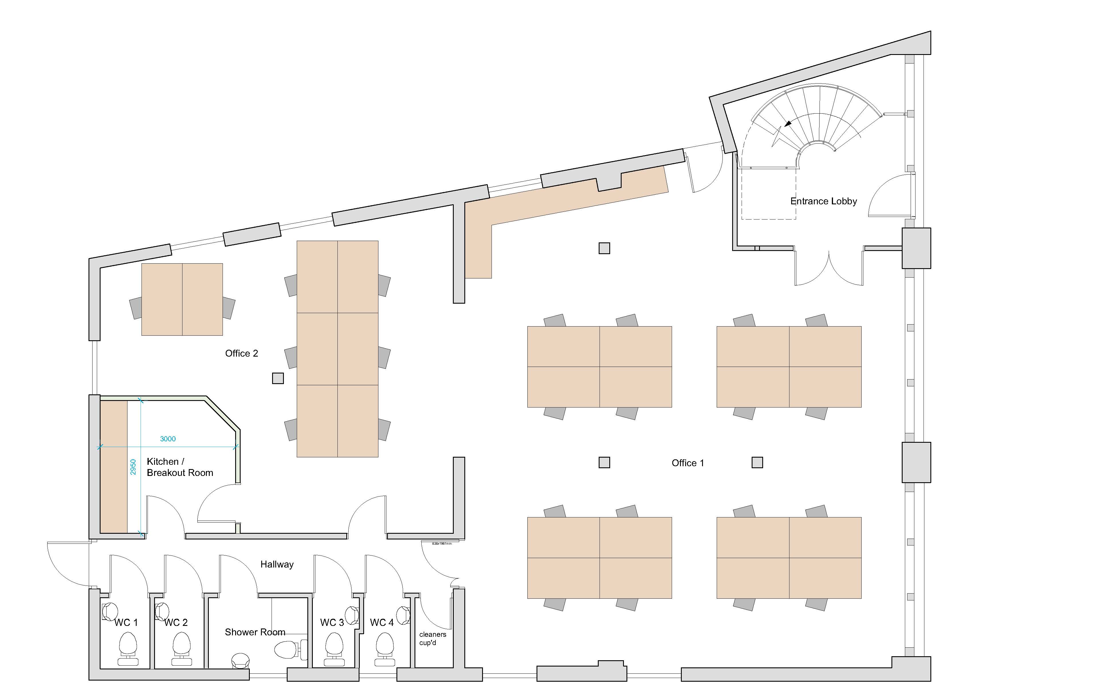
Description

The available premises comprises 1,630 sq ft of well presented office space. The accommodation is located on the ground floor, providing open plan office space with a breakout area and w/c facilities with a shower located to the rear of the property. The property also has a smart reception area with bespoke feature lighting. 

The accommodation is light and airy and fitted with floor boxes, ceiling mounted lighting, air-conditioning throughout and Cat 6 cabling. All furniture currently in the office is available for any potential tenant by way of separate negotiation.

Redecoration to the interior of the office is soon to be underway. Any tenant wanting to take the space can have input into colour schemes and specification of the works.

Accommodation

The property provides approximately 1,630 sq ft of office accommodation.

It benefits from 2 onsite car parking spaces to the rear and if required, additional car parking spaces can be rented from Saint’s football club, which is just as short walk away. Long stay public parking is also available opposite Valpys which is also closeby.

Rent

The rent is available upon application. 

Legals

All terms are subject to contract.
Each party shall bear their own legals costs in connection with this transaction.

Tenure

The property is available by way of sub-lease.

Availability

The property is available immediately 

Floor Plan - Ground

  • Building Consultancy

    Our Building Consultancy Team offers a broad range of building surveying services, including project management, defect analysis, dilapidations and interior fit outs on all property types.

  • Lease Consultancy

    Our Lease Consultancy Department includes an expert team to deal with all manner of landlord and tenant matters.

Rent Multi Agency

Old Bank Chambers Self-contained Offices

 
Book Viewing
Complete your details below and we will contact you:

Something went wrong, please try again.

Your request was submitted, we'll be in touch!