Property Type
Property Name
Square Footage: -
arrow_backward
Rent Joint Agency | Office

Park Place High Grade Office

Park Street, St Peter Port, Guernsey
  • Total Space
    3,596 SQ FT
  • Location
    Central
  • Car Parking
    Generous
  • Specification
    Refurbished
  • Rent
    Upon Application
  • Available
    Immediately
Location

The property is prominently positioned on Park Street in St Peter Port. It therefore lies in close proximity to Sir Charles Frossard House, the administrative headquarters of the States of Guernsey. Other occupiers in the vicinity include Guernsey Finance, Ferbrache & Farrell, Price Bailey, BDO Accountants, Skipton International, Moore Stephens Accountants, JLT and Nobel Trust.  The retailing pitches of Mill Street, Market Square and the High Street are all situated a few minutes walk away and offer a broad range of amenities.

Description

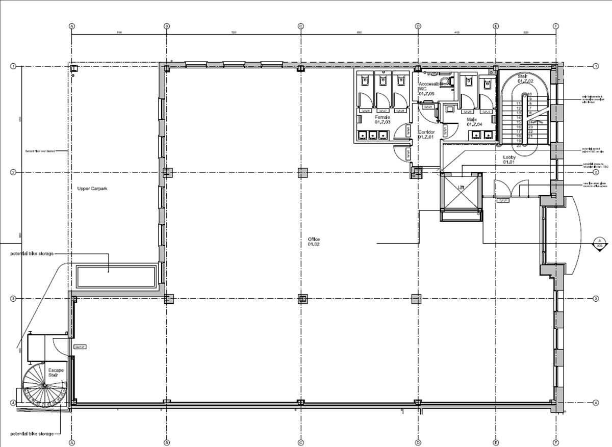
Park Place offers Grade A office accommodation arranged a single floor, providing 3,596 sq ft of accommodation. The property has recently undergone an extensive refurbishment to include open plan office suites with smart dedicated ground floor reception, showers, a locker room, cycle storage and lift access to all floors.  Each floor will have its own dedicated WCs, new air conditioning and lighting as well as raised access flooring.  In addition the property has the benefit of on-site car parking provision at the ratio of 1 space per 432 sq ft. There is short term car parking across the road. If required, there is also the opportunity to rent additional car parking spaces, just a short walk away.

Accommodation

The property provides approximately 3,596 sq ft of office accommodation. This is arranged as follows:

Floor

Area (sq ft)

First Floor

3,596

Total

3,596

Car parking spaces are available at a ratio of 1 space per 432 sq ft.

First Floor

Tenure

Leasehold.
The premises is available immediately by way of a new lease direct with the Landlord.

Rent

The rent for the premises is available upon application.

Availability

The premises is available to rent immediately.

Legals

All terms are subject to contract.
Each party shall bear their own legal costs in connection with this transaction.

  • Building Consultancy

    Our Building Consultancy Team offers a broad range of building surveying services, including project management, defect analysis, dilapidations and interior fit outs on all property types.

  • Lease Consultancy

    Our Lease Consultancy Department includes an expert team to deal with all manner of landlord and tenant matters.

Rent Joint Agency

Park Place High Grade Office

 
Book Viewing
Complete your details below and we will contact you:

Something went wrong, please try again.

Your request was submitted, we'll be in touch!