Property Type
Property Name
Square Footage: -
arrow_backward
Sale Sole Agency | Retail/Other

8, 10, 12 & 42 Commercial Arcade Prime Retail Unit

St Peter Port, Guernsey
£900,000
  • Total Space
    3,189 SQ FT
  • Ground Floor
    1,200 SQ FT
  • Upper Floors
    1,989 SQ FT
  • Retail
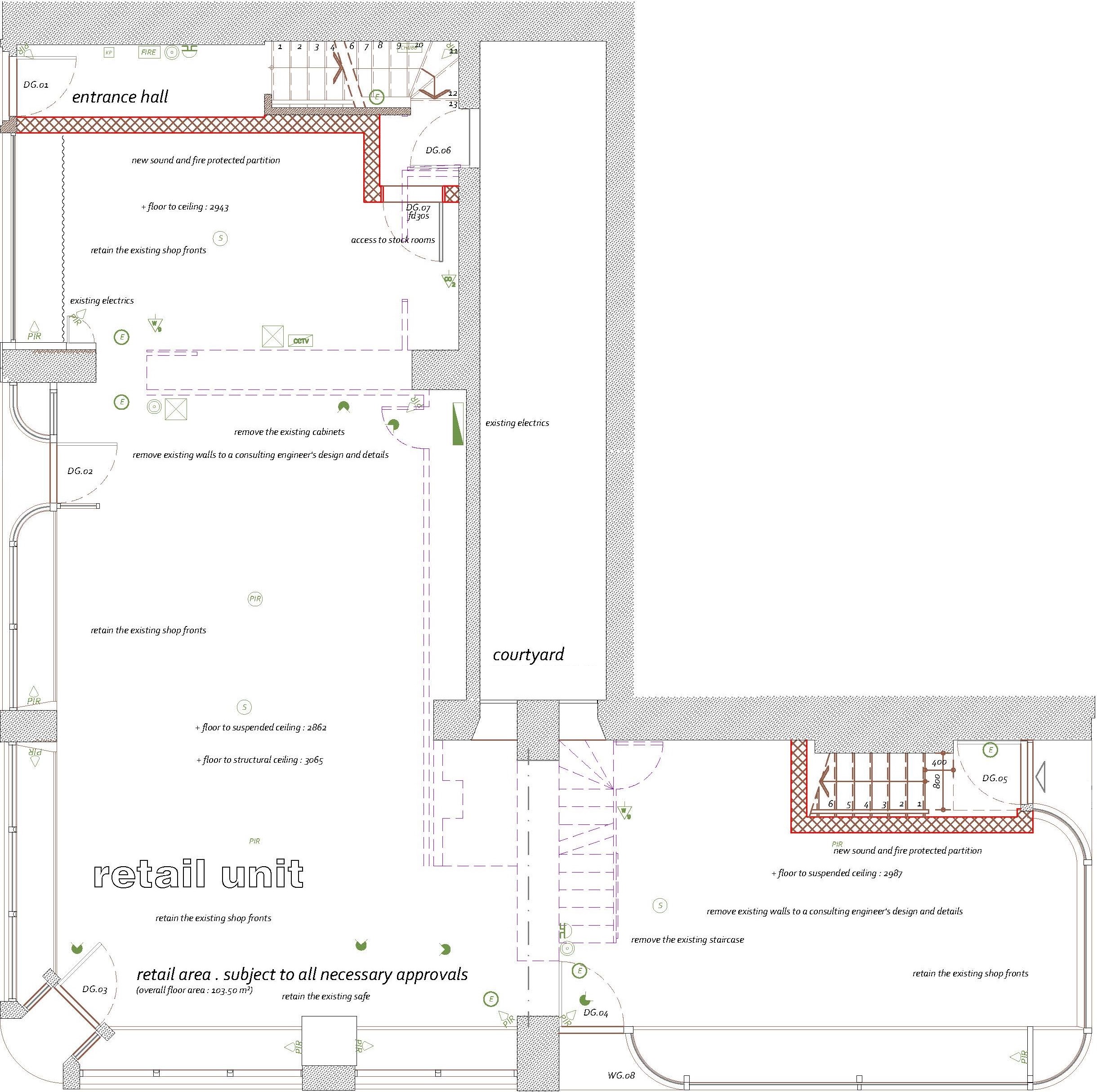
    Ground Floor
  • Additional
    1,300 Sq Ft Storage
  • Planning Permission
    4 Residential Units
Location

8,10,12 & 42 Commercial Arcade is situated in the heart of St Peter Port's main retail centre. With a prominent triple frontage marking the gateway into the Commercial Arcade, it benefits from excellent footfall linking the popular Market Square to the High Street.

Other occupiers within close proximity include Trespass, Costa Coffee, The Body Shop, Specsavers, Sports Direct, Dix Neuf and New Look.

Description

The property is arranged over basement, ground, first and second floors and comprises four interconnected properties.

The basement is offered in a shell condition and could be utilised as storage/ancillary accommodation for the retail unit which is arranged across the ground floor. 

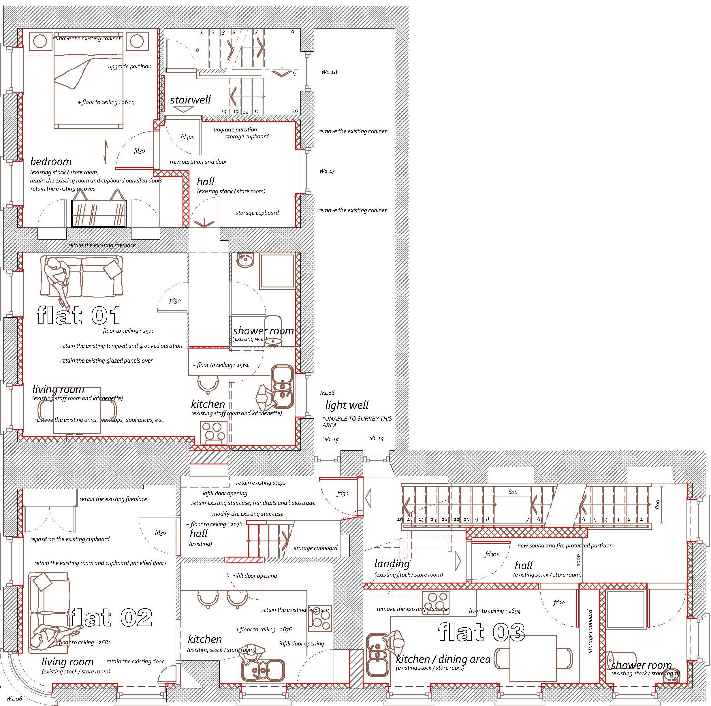
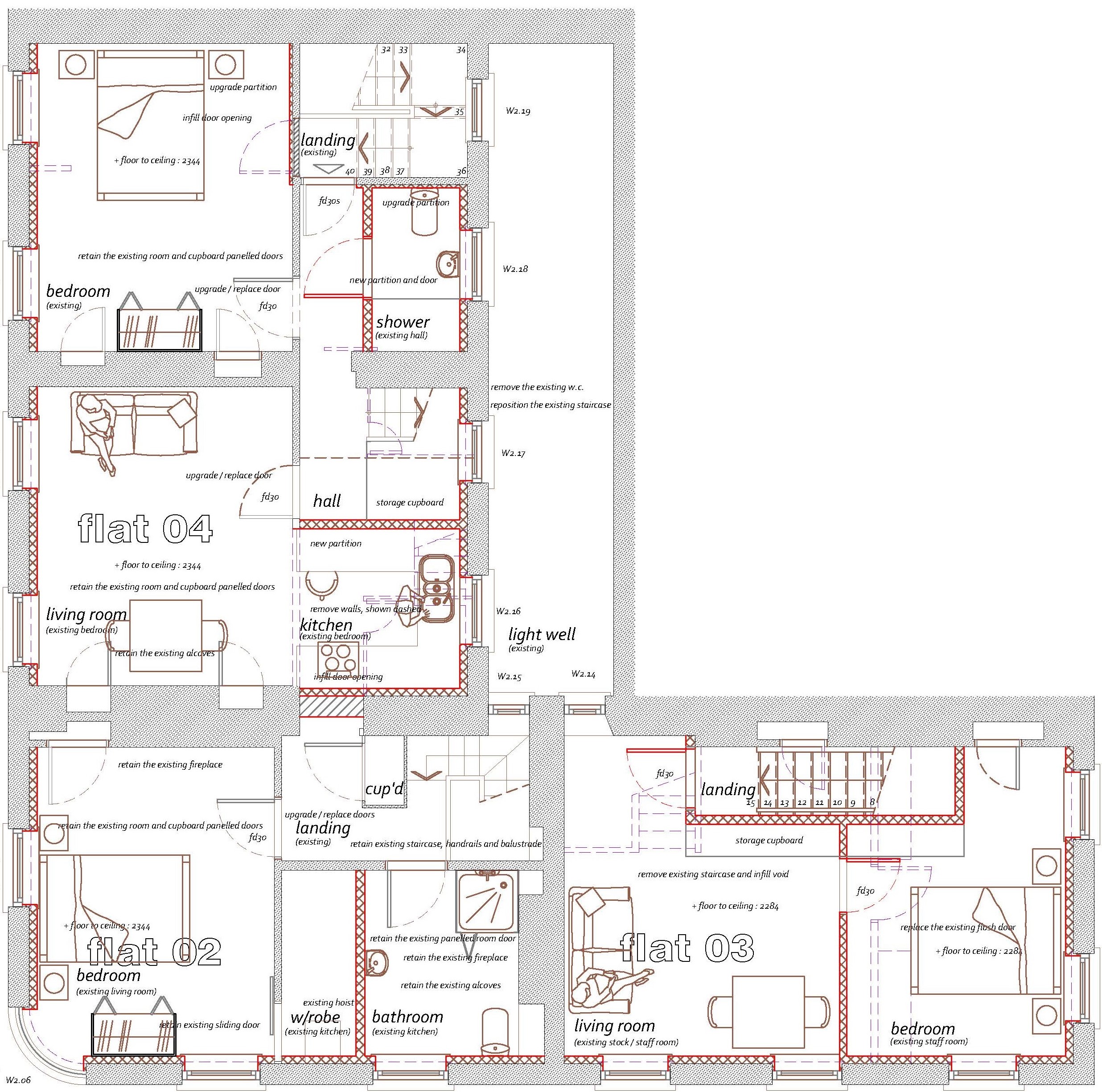
Planning permission has also recently been granted to convert the remainder of upper floors into three further one bedroom apartments, two of which are maisonettes. These units will have kitchens, living rooms and shower rooms.

Accommodation

The premises provides 4,500 sq ft of accommodation arranged over lower ground, ground and two upper floors, as follows:

Floor Area (sq ft)
Basement 1,300
Ground 1,200
First & Second 1,989
Total 4,489

Proposed Basement

Proposed 1st Floor

Proposed 2nd Floor

Tenure

Freehold.
The property is available to purchase immediately.

Price

The price for the property is £900,000 (nine hundred thousand pounds).

Legals

All terms are subject to contract.
Each party shall bear their own legal costs in connection with this transaction.

  • Valuation

    We have a team of RICS Registered Valuers who combine experience, local market knowledge and high standards of professionalism to provide valuation reports tailored to provide clients with the information they require.

  • Property Management

    Our dedicated Property Management Team has a broad range of technical and financial management skills to ensure the properties we manage are in safe hands.

Sale Sole Agency

8, 10, 12 & 42 Commercial Arcade Prime Retail Unit

 
Book Viewing
Complete your details below and we will contact you:

Something went wrong, please try again.

Your request was submitted, we'll be in touch!