Property Type
Property Name
Square Footage: -
arrow_backward
Sale Sole Agency | Office/Industrial

Unit 1, Cobo Business Centre Industrial Unit / Office

Clos De Salle, Route De Carteret, Castel, Guernsey
£525,000
  • Total Space
    1,596 SQ FT
  • Ground Floor
    847 SQ FT
  • First Floor
    749 SQ FT
  • Location
    Cobo
  • Use
    Industrial
  • Onsite Car Parking
    2 Allocated Spaces
Location

Unit 1, Cobo Business Centre forms part of an industrial complex located on Clos De Salle, just off Route De Carteret. It therefore sits close to the west coast and within walking distance of the Cobo Local Centre and the amenities it has to offer. This includes schools, a doctor surgery, pharmacy, optician, launderette, hotels, restaurants, public houses, a super market, petrol filling station and other retail outlets.

Other occupiers in the vicinity include Hillstone, Annandale, Aztech Soccer and Stan Brouard.

Description

Built in 2017, Unit 1 is a semi-detached industrial unit of cavity block construction with a warm deck pitched roof. It has UPVC double glazed windows and UPVC rain water apparatus.  

Arranged over ground and first floor levels, it is accessed via a retrospectively installed pedestrian access door together with additional glazing. This sits behind the originally installed electronically operated roller shutter door which measures 3.042m wide by 3.062m high.

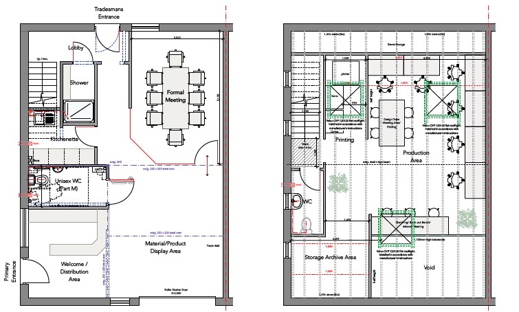
Internally, it offers well presented and modern accommodation which has been fitted out as an office. At ground level, there is a reception, boardroom, disabled WC, kitchenette and shower. The first floor comprises an open plan office with a further WC.

Externally, the unit has two allocated onsite car parking spaces and use of three visitor car parking spaces which are shared with the other occupiers of the complex.

Accommodation

The property provides approximately 1,596 sq ft of industrial accommodation. This comprises the following:

Floor Area (sq ft)
Ground 847
First 749
Total 1,596
Tenure

Freehold.
The property is available to purchase together with an existing lease in place which is due to expire 31 August 2029.
The passing rent is £28,134 per annum.

Price

The property is available to purchase for £525,000 (five hundred and twenty five thousand pounds).

Availability

The property is available to purchase immediately.

Legals

All terms are subject to contract.
Each party shall bear their own legal costs in connection with this transaction.

  • Valuation

    We have a team of RICS Registered Valuers who combine experience, local market knowledge and high standards of professionalism to provide valuation reports tailored to provide clients with the information they require.

  • Property Management

    Our dedicated Property Management Team has a broad range of technical and financial management skills to ensure the properties we manage are in safe hands.

Sale Sole Agency

Unit 1, Cobo Business Centre Industrial Unit / Office

 
Book Viewing
Complete your details below and we will contact you:

Something went wrong, please try again.

Your request was submitted, we'll be in touch!