Property Type
Property Name
Square Footage: -
arrow_backward
Rent Sole Agency | Office

Cambridge House Second Floor

Le Truchot, St Peter Port, Guernsey
  • Total Space
    6,243 SQ FT
  • Location
    Central
  • Condition
    Newly Refurbished
  • Car Parking
    11 On Site Spaces
  • Views
    Sea Views
  • Rent
    Upon Application
Location

Cambridge House is located in Le Truchot, a popular location in the heart of St Peter Port’s financial district, in close proximity to the North Beach Public Car Park and the central retail area.

Other occupiers in the vicinity include Barclays Bank, Mourant, Ogier, Lloyds TSB and PraxisIFM.

Description

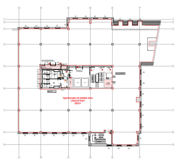
The available premises is located on the second floor of the building and has recently undergone full refurbishment to a high specification. It therefore provides large open plan offices, completed to a CAT A specification. It also comes with secure on-site parking for 11 vehicles.

The premises offers:-

  • new ceiling grids with LG7 lighting
  • new air conditioning
  • raised access flooring
  • refurbished entrance lobby
  • on site shower facilities
  • newly refurbished WC facilities
  • two new passenger lifts serving each floor
Accomodation

The premises provides 6,243 sq ft of flexible, open plan office accommodation together with onsite car parking for 11 vehicles.

Tenure

Leasehold.  The premises are available by way of a new lease direct with the landlord. 

Rent

The rent for the premises is available upon application.

Availability

The property is available to rent immediately.

Legal

All terms are subject to contract.
Each party is to bear their own legal costs.

Floor Plan

  • Building Consultancy

    Our Building Consultancy Team offers a broad range of building surveying services, including project management, defect analysis, dilapidations and interior fit outs on all property types.

  • Lease Consultancy

    Our Lease Consultancy Department includes an expert team to deal with all manner of landlord and tenant matters.

Rent Sole Agency

Cambridge House Second Floor

 
Book Viewing
Complete your details below and we will contact you:

Something went wrong, please try again.

Your request was submitted, we'll be in touch!