Hirzel Court is located on Hirzel Street in the centre of St Peter Port, just a short walk from the High Street, the main financial district and all the amenities town has to offer. The Royal Court is also located nearby along with a number of other high profile companies such as Zedra, FNB, Parish Group, Brooks Mcdonald and OAK. The Odeon car park which offers long stay public car parking and additional on street parking is located in the near vicinity.
-
SpecificationFitted
-
LocationCentral
-
Car Parking3 Onsite Spaces
-
RentUpon Application
-
AvailableSept 2025

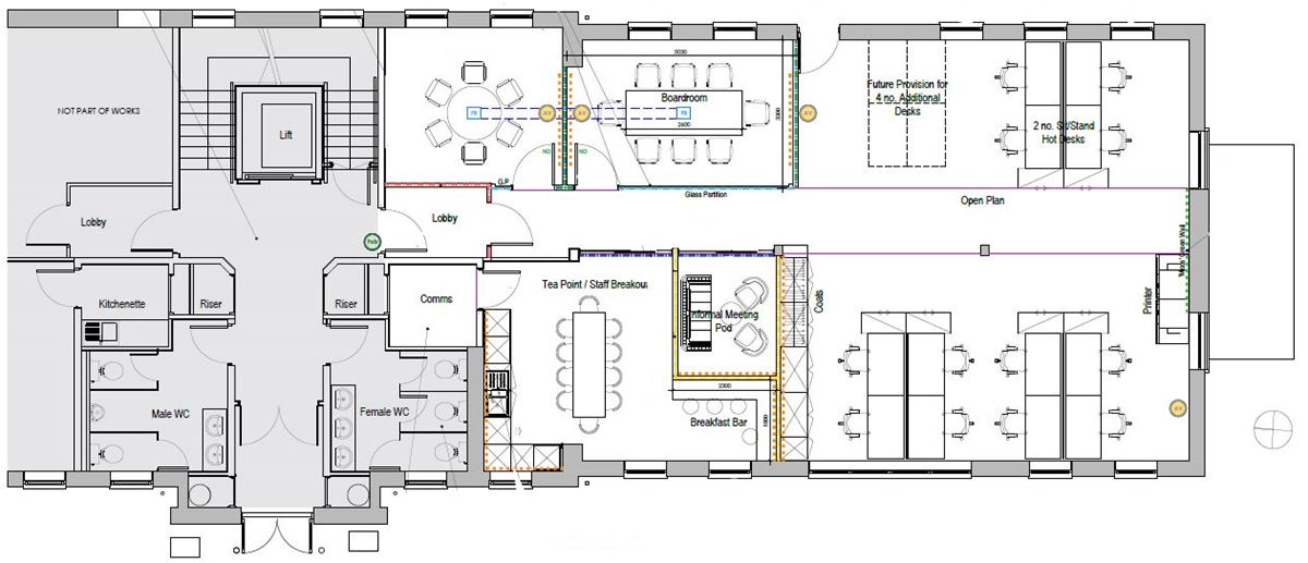
The available premises, known as Suite 1, is located on the southern on the ground floor of Block C, Hirzel Court. It is accessed via a communal entrance and lobby and is offered with air conditioning, suspended ceilings, recessed LED lighting and perimeter trunking.
The suite is finished to a modern standard to include a reception area, two meetings rooms, a comms room and a kitchen / break out area. To the rear of the suite is a large open plan area which enjoys good levels of natural light.
The toilet facilities are located in the central staircore and are shared in common with the other occupiers of the building. Externally, there are three allocated on site car parking spaces for the premises.
The premises provides approximately 1,667 sq ft of accommodation. There are also three allocated on site car parking spaces.

Leasehold. The property is available by way of a new lease directly with the landlord.
The rent for the premises is available upon request.
All terms are subject to contract.
Each party shall bear their own legal costs in connection with this transaction.
-
Building Consultancy
Our Building Consultancy Team offers a broad range of building surveying services, including project management, defect analysis, dilapidations and interior fit outs on all property types.
-
Lease Consultancy
Our Lease Consultancy Department includes an expert team to deal with all manner of landlord and tenant matters.
Hirzel Court Block C, Suite 1

Your request was submitted, we'll be in touch!