The property is situated on the corner of Le Bordage and Tower Hill in a prominent and central location, just a short distance from the Market Development and the central retail district. Other businesses in the vicinity include Active Group, Skipton International, Partners Group, The Data Protection Authority and Louvre Group.
-
Total Space1,237 SQ FT
-
ParkingTwo Spaces
-
AvailableImmediately
-
ConditionRefurbished
-
LocationCentral
-
TermsFlexible

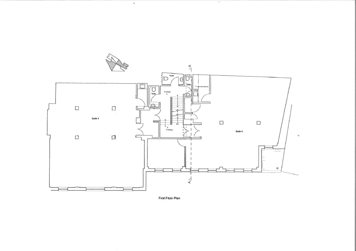
The available premises comprises approximately 1,237 sq ft of open plan office accommodation on the first floor of the building. Access to the premises is via a communal stairwell and lobby which leads directly from Le Bordage. The office is fitted with suspended ceilings with recessed lighting and air conditioning. It has recently been decorated and is therefore presented in excellent order. It also has the benefit of its own kitchenette and WC facilities and has large windows to the front together with excellent ceiling heights.
The premises comprises ,

The premises is offered with two on site secure car parking spaces. These are accessed from Pedvin Street. There is also long stay public parking just a short walk away at Le Mignot Plateau.
The rent is available upon application. In addition to the rent, the tenant is responsible for contributing towards the service charge for the building and the usual occupational costs such as tax on real property, parochial rates and building insurance.
Leasehold. The premises is available by way of a new lease direct with the landlord. All other terms are available upon request.
The property is available immediately.
All terms are subject to contract.
Each party shall bear their own legal costs in connection with this transaction.
-
Building Consultancy
Our Building Consultancy Team offers a broad range of building surveying services, including project management, defect analysis, dilapidations and interior fit outs on all property types.
-
Lease Consultancy
Our Lease Consultancy Department includes an expert team to deal with all manner of landlord and tenant matters.
Tower Hill House Suite 3

Your request was submitted, we'll be in touch!